
Nous élaborerons les plans techniques requis pour la réalisation de votre projet.
Plan de construction et de démolition
Plan d'agrandissement
Plan pour aménagement extérieur (terrasse)
Plan d’aménagement
Plan de plafond et d’éclairage
Plan de coloration
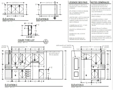
Élévations de mobilier sur mesure

Ce service est parfait pour figurer l'espace et l'agencement des matériaux. Il permet de visualiser facilement la pièce avant les rénovations et de s'assurer que chaque détail est à votre goût !
Ce service permet aussi de mieux visualiser les textures et les éléments décoratifs.
.jpg/:/cr=t:0%25,l:12.27%25,w:74.81%25,h:100%25/rs=w:388,h:291.72932330827064,cg:true)
Le service de mood board est essentiel pour rassembler les images d'Inspirations, les choix de matériaux, de mobiliers et de décorations.
Il est accompagné d'une liste de magasinage clair et efficace qui facilitera votre magasinage.
Ce service permet de nous laisser la tâche de coordonner les intervenants, de vérifier l'avancement des travaux et de s’assurer que chaque détail est suivi de près afin d’assurer une exécution conforme à votre vision.
Ce service vous permets de nous laisser gérer les crises et de trouver des solutions pour vous.
Votre maison ne correspond plus à votre réalité ? Ce service propose d'analyser le potentiel de votre maison existante.
Nous vous suggérerons différentes options de réaménagement et/ou d'agrandissement, des plans 3D extérieurs et l'élaboration des plans techniques pour la réalisation de votre projet.
Vous désirez une conception architecturale qui correspond complétement à vos besoins? Ayez tout en main pour votre nouvelle construction.
Plans architecturaux complets
Plans de mobiliers intégrés
Ajouter nos divers services pour une offre complète et avoir une meilleure vue d'ensemble du projet.

Vous ne savez pas quels matériaux choisir pour votre projet? Il nous fera plaisir de vous éclairer pour sélectionner ceux qui correspondent à vos besoins.
Laissez-nous le soin de vous proposer des agencements qui s'harmonisent avec les autres pièces de votre maison.

Ce service est idéal pour un choix de peinture, des conseils pour optimiser votre espace ou ajouter des éléments décoratifs.
Pour un service complet, ajoutez le service de mood board ou de conception 3D. Cela vous aidera à visualiser nos propositions et à prendre des décisions éclairées.

Ce service comprend la gestion complète des achats jusqu’au positionnement du mobilier, de la literie et de la décoration.
Nous définirions ensemble notre implication selon vos besoins.
Vous avez un projet de rénovation, d’agrandissement ou de construction neuve ?
Au début d'un nouveau projet, une prise de contact est primordiale pour assurer un bon partenariat. Complétez notre questionnaire d’avant-projet. À la réception de ce questionnaire, une rencontre téléphonique sera planifiée. Par la suite, vous recevrez notre offre de service personnalisée dans les plus brefs délais.
Copyright © 2025 Organik Design Architectural - Tous droits réservés.
Nous utilisons des cookies pour analyser le trafic du site Web et optimiser votre expérience du site. Lorsque vous acceptez notre utilisation des cookies, vos données seront agrégées avec toutes les autres données utilisateur.